REW Messungen Homestudio

  • #41
Das ist die Ausenwand Beton mit Fenster lange Seite.
Abstand wand links zum Fenster 205 cm
Die andere lange Seite ist Ziegel, dahinter Treppenhaus und Vorratsraum,
die kurze Seite wo die Boxen stehen sollen ist Beton Ausenwand,
Die Seite hinten kurz ist Trockenbau dahinter Lagerraum

Das Haus ist 4 Jahre alt, KfW 55
Was ist über der Decke?
 

  • #42
Bezüglich Dämmwolle auch noch mal die Rollenware (z.b. Isover) anschauen. Die ist meistens im qm-Preis noch günstiger und hat durch heftige Kompression den Vorteil, dass sie sich in kleinere Mengen (4-5 Rollen) bequem im PKW transportieren lässt. Weiterer Vorteil ist die größere Materialstärke als bei den Paketen mit Platten. So kannst du z.B. 200 mm Stärke nehmen, um auf deine 600mm zu kommen.
 
  • Danke
Reaktionen: muleb
  • #43
Fenster wird vermutlich außerhalb der RFZ (Reflection Free Zone - bei dir der Bereich wo alles voll absorptiv vorne ist) landen.

Mit dem Fenster beginnt ja mehr oder weniger auf ein paar cm hin oder her der teil-reflektierende Bereich (mit Brettern) Ich würde das erst mal so machen, gegenüber ganz normal durchziehen.

Fenster.jpg

Du kannst dir später immer noch aus dem Material dass dir über bleibt einen "Plug" bauen. Also einfach ein Teil dass du bei Bedarf rein drücken, schieben, hängen, was auch immer kannst. Aber ganz ehrlich - ich glaub dass du dadurch nicht mal einen großartig "messbaren" Unterschied erreichen wirst - und es wäre sehr verwunderlich wenn du einen Unterschied hören würdest.

Zum Schimmel. Ich bin mir nach wie vor wegen der Decke nicht sicher. Wenn der Raum drüber beheizt ist würde ich mir gar nix denken.
Und wegen den Seitenwänden würde ich mir auch nix denken wenn du es so baust wie ich es hier vorgeschlagen hab. Einzelne Kästen die halt eh ein Stück weg von der Wand stehen. Und ich würde das ganze eh nur kritisch an Außenwänden sehen. Heißt wenn du dich jetzt entschließt keine einzelne Kästen zu bauen, sondern lieber ein Ständerwerk aus Holz dann wirst du es vermutlich auch bis zur Wand voll befüllen. Dann würde ich mich da nochmal absichern.

cheers
 
  • Danke
Reaktionen: muleb
  • #44
Oben drüber ist der Wohnraum, EG mit Fußbodenheizung
 
  • #45
Bezüglich Dämmwolle auch noch mal die Rollenware (z.b. Isover) anschauen. Die ist meistens im qm-Preis noch günstiger und hat durch heftige Kompression den Vorteil, dass sie sich in kleinere Mengen (4-5 Rollen) bequem im PKW transportieren lässt. Weiterer Vorteil ist die größere Materialstärke als bei den Paketen mit Platten. So kannst du z.B. 200 mm Stärke nehmen, um auf deine 600mm zu kommen.

Hab grad geschaut, was von Isover? Da gibt es vi4l Auswahl
Ok, danke again! :)

Wir fangen nächste Woche an zu bauen ( bin grad noch krank) mit den Deckenkanten.
Frage zur Füllung:
Kannn ich die 62,5 x 100 Sonorock Dämmplatten auch hintereinander stellen?

Dann erhol dich wieder gut. Und nutz die Zeit um dir genau über solche Sachen Gedanken zu machen.
Es ist wichtig immer einen Schritte weiter zu denken.
Nehme ich die Obi Preise dann kostet eine Packung 40mm Sonorock 12,68 €, da sind 12 Stück drin.
Heißt 12,68 / 12 = 1,06 pro Platte, Für 400 mm Tiefe brauchst du 10 Platten = 1,06 x 10 = 10,60 €

Eine Packung 100mm Sonorock kostet bei Obi 15,71, es sind 6 Platten drin. Macht 2,62 pro Platte. Ich brauch aber nur 4 Stück davon um auf 400mm Dicke zu kommen = 2,62 x 4 = 10,48 €

Ist bei Obi jetzt sogar um ein paar Cent billiger - aber abgesehen von diesen paar Cents ist es halt extrem cooler mit 100 mm Platten zu arbeiten als mit 40mm.

Zur Konstruktion musst du dir auch Gedanken machen. Welche Rahmenkonstruktion willst du bauen, aus MDF, aus Dachlatten, OSB?

Ich plane alles mit 19mm MDF, weil ich auch eine günstige Möglichkeit habe ran zu kommen und es zu schneiden. Für andere macht es vielleicht mehr Sinn Rahmenhölzer zu verwenden, weil man da mit einer Kappsäge schon sehr weit kommt.

Wenn du jetzt eh etwas an das Bett oder die Couch gefesselt bist lad dir ein Freeware CAD Programm runter und spiel damit rum. Plane das ganze gut.

Es sind jetzt dann tatsächlich die kleinen Dinge die dir hinterher beim Bau ärger machen.
Das ist z.B. dein Gedanke aufs Papier gebracht.
Anhang anzeigen 64034

Sonorock hintereinander in die Ecken bei der Decke gestellt. Hat zur folge, dass ich bei den Seitenwänden die oberste Lage immer abschneiden muss weil nur noch ein bisschen über 500 mm Platz ist.
Anhang anzeigen 64035

Hier könnte ich unten einfach 3 x Sonorock übereinander stellen. Bekomme aber in die Ecken bei der Decke nur noch 500 mm an Dicke rein.

Erstes Bild wären die Ecken bei der Decke 625 mm (Dicke/ Höhe) und 600 mm (Breite) Sonororck
Zweites Bild wären es 500 mm Dicke + ein bisschen Luft (Dicke/Höhe) und 625 mm (Breite) Sonorock.

625 x 600 ist vermutlich schon ein bisschen effektiver als 500 x 625.
Bei 500 x 625 muss ich aber keine einzige Steinwollplatte schneiden und hab noch ein bisschen Luft zur Decke. Ich müsste auch an den Seitenwänden nix schneiden.
600 x 625 wäre hier sicher das "Beste". 500 x 625 sind aber auch sehr gut. Steinwolle schneiden kann man mögen oder nicht. Die Frage ist auch ob sehr gut für einen reicht oder ob man das Beste braucht.
Das sind aber Dinge die jeder selber für sich entscheiden muss. Wenn du den Raum so machst wie vorgeschlagen, wird er sowieso ein super Ergebnis liefern egal ob nun 500 oder 625.

Wie gesagt, lad dir so ein Programm runter oder zeichne es dir auf. Rechne ein paar Tage rum. Planung ist die halbe Miete hier. Schau dass du überall eine Kante hast wo du den Stoff befestigen kannst.
Lieber echt einen Tag mehr rum planen als sich hinterher in den Arsch zu beißen weil was nicht so hinhaut wie gedacht.

Wenn du magst kannst du ja noch die Infos über die angrenzenden Räume posten und die Fenster Situation zeichnen oder fotografieren.
Die Schimmelfrage ist grundsätzlich sehr kontrovers diskutiert. Ich gebe gern meine persönliche Meinung ab wenn ich weiß was an die Wände angrenzt, ich würde dir aber raten diese Frage nicht im Forum zu klären. Frag da einfach einen Trockenbauer oder jemand wo du weißt der das sicher gut beurteilen kann.

cheers

cheers

Witzig, mein Plan von gestern Nacht ähnelt deinem verblüffend. Das beruhigt mich
:D

Hab allerdings lang dafür gebraucht, ich schau mir das empfohlene Programm mal an
11C4058E-55ED-4659-A38C-80D6BA7B75C6.jpeg
 
  • #46
Fenster wird vermutlich außerhalb der RFZ (Reflection Free Zone - bei dir der Bereich wo alles voll absorptiv vorne ist) landen.

Mit dem Fenster beginnt ja mehr oder weniger auf ein paar cm hin oder her der teil-reflektierende Bereich (mit Brettern) Ich würde das erst mal so machen, gegenüber ganz normal durchziehen.

Anhang anzeigen 64038

Du kannst dir später immer noch aus dem Material dass dir über bleibt einen "Plug" bauen. Also einfach ein Teil dass du bei Bedarf rein drücken, schieben, hängen, was auch immer kannst. Aber ganz ehrlich - ich glaub dass du dadurch nicht mal einen großartig "messbaren" Unterschied erreichen wirst - und es wäre sehr verwunderlich wenn du einen Unterschied hören würdest.

Zum Schimmel. Ich bin mir nach wie vor wegen der Decke nicht sicher. Wenn der Raum drüber beheizt ist würde ich mir gar nix denken.
Und wegen den Seitenwänden würde ich mir auch nix denken wenn du es so baust wie ich es hier vorgeschlagen hab. Einzelne Kästen die halt eh ein Stück weg von der Wand stehen. Und ich würde das ganze eh nur kritisch an Außenwänden sehen. Heißt wenn du dich jetzt entschließt keine einzelne Kästen zu bauen, sondern lieber ein Ständerwerk aus Holz dann wirst du es vermutlich auch bis zur Wand voll befüllen. Dann würde ich mich da nochmal absichern.

cheers

Ja, ich hatte auch schon mit dem Gedanken gespielt, mir irgendein Konstrukt zu bauen dass ich dann einfach vor das Fenster schieben, hängen, irgendwie montieren kann. Bin aber nicht wirklich auf eine Lösung gekommen. Du hast recht, erst mal messen und dann schauen ob überhaupt nötig.
Laut deinem Plan sind die Stellwände wie du sagst ja eh etwas von der Wand weg.
Nein, ich baue keinen Ständerwerk, sondern einzelne Kisten. Damit habe ich auf der Außenwand lange Seite etwas Abstand zur Wand.
Und was die Wand hinter den Lautsprechern angeht, auch eine Außenwand, mal schauen. Evtl zwei Module 100 breit und bis zum Deckenkantenabsorbee hoch, 20 dick?
Aber langsam, jetzt erst mal die Deckenkannte bauen.

Ich werde übrigens Dachlatten verwenden, mein Vater hat da eine günstige Quelle. Außerdem braucht der Beschäftigung :)
 
  • #47
Ich denke, optisch könnte das ganz cool aussehen wenn ich alle Seitenelemente mit einer helleren Farbe beziehen (zum Beispiel orange) was dann leicht durch die Ritzen scheint. Bei den teilreflektierenden Elementen
 
Zuletzt bearbeitet:
  • #48
Nein, ich baue keinen Ständerwerk, sondern einzelne Kisten. Damit habe ich auf der Außenwand lange Seite etwas Abstand zur Wand.

Ich hatte in meinem ersten Raum ein Ständerwerk rein gebaut und einfach befüllt. Im meinem 2. aktuellen Raum (der im Grunde das ist was ich dir hier gepostet hab) habe ich die Kästen für die Seitenwand gebaut.
Es hatte eigentlich den Grund weil ich nicht sicher wusste ob ich in diesem aktuellen Raum bleibe oder doch irgendwann den daneben nehme weshalb ich auf Kästen gegangen bin. Ich bin immer noch in dem Raum und werde da auch bleiben aber das Kästchen Zeug hilft zum einen bei der "Schimmelangst" und hat halt auch tierisch viel praktische Vorteile. Du kannst das beispielsweise dasTeil einfach vor holen und ein Kabel dahinter verlegen.
Ob nun MDF oder Dachlatten ist egal. Plan dir bei Dachlatten etwas Luft ein, weil es nicht so leicht ist den Kasten damit auf den mm genau hin zu bekommen als mit MDF. Und schau dass du die Dinger stabil machst. In fünf Jahren taugt dir vielleicht die Farbe des Stoffes nicht mehr oder du möchtest den Holzbrettern einen anderen Anstrich geben - dann sollte es auch möglich sein die Sachen vom Kasten runter zu machen und erneut wieder dran - nicht dass dir dann alles in der Hand bleibt.

Und was die Wand hinter den Lautsprechern angeht, auch eine Außenwand, mal schauen. Evtl zwei Module 100 breit und bis zum Deckenkantenabsorbee hoch, 20 dick?
Aber langsam, jetzt erst mal die Deckenkannte bauen.
Genau, erst mal abwarten. Diese Wand ist bewusst als Reserve da. Diese Wand bietet erst mal reichlich Reserve für Basstreatment oder ggf einen Helmholtzresonator. Wobei ich davon ausgehe, dass du gut fahren wirst mit dem was du hast. Erst mal Speaker dann einmessen, und dann ist es gut wenn noch eine Wand frei ist - das hat schon seinen Grund ;-)

Allgemein ist es aber gut die Wand unmittelbar hinter den Lautsprechern auch absorptiv zu gestalten. Also so ca 20 cm ab und aufwärts von den Lautsprechern. Darüber und darunter ruhig wieder teil-reflektierend (diesmal aber nicht horizontal wie an den Seiten sonder vertikal die Bretter arrangieren).

Wenn deine Speaker Flush in der Wand wären würde man die Wand nach diesem Raumkonzept komplett schallhart machen können.

Frei davor stehende Lautsprecher geben aber häufig noch eine gute Portion tiefere Mitten ziemlich omnidirektional ab. Und wenn die dann wieder von der Frontwand zurückgeworfen werden können die echt das Imaging beeinträchtigen.

cheers
 
  • #49
Nein, ich baue keinen Ständerwerk, sondern einzelne Kisten. Damit habe ich auf der Außenwand lange Seite etwas Abstand zur Wand.

Ich hatte in meinem ersten Raum ein Ständerwerk rein gebaut und einfach befüllt. Im meinem 2. aktuellen Raum (der im Grunde das ist was ich dir hier gepostet hab) habe ich die Kästen für die Seitenwand gebaut.
Es hatte eigentlich den Grund weil ich nicht sicher wusste ob ich in diesem aktuellen Raum bleibe oder doch irgendwann den daneben nehme weshalb ich auf Kästen gegangen bin. Ich bin immer noch in dem Raum und werde da auch bleiben aber das Kästchen Zeug hilft zum einen bei der letzten "Schimmelangst" und hat halt auch tierisch viel praktische Vorteile. Du kannst das beispielsweise dasTeil einfach vor holen und ein Kabel dahinter verlegen.
Ob nun MDF oder Dachlatten ist egal. Plan dir bei Dachlatten etwas Luft ein, weil es nicht so leicht ist den Kasten damit auf den mm genau hin zu bekommen als mit MDF. Und schau dass du die Dinger stabil machst. In fünf Jahren taugt dir vielleicht die Farbe des Stoffes nicht mehr oder du möchtest den Holzbrettern einen anderen Anstrich geben - dann sollte es auch möglich sein die Sachen vom Kasten runter zu machen und erneut wieder dran - nicht dass dir dann alles in der Hand bleibt.

Und was die Wand hinter den Lautsprechern angeht, auch eine Außenwand, mal schauen. Evtl zwei Module 100 breit und bis zum Deckenkantenabsorbee hoch, 20 dick?
Aber langsam, jetzt erst mal die Deckenkannte bauen.
Genau, erst mal abwarten. Diese Wand ist bewusst als Reserve da. Diese Wand bietet erst mal reichlich Reserve für Basstreatment oder ggf einen Helmholtzresonator. Wobei ich davon ausgehe, dass du gut fahren wirst mit dem was du hast. Erst mal Speaker dann einmessen, und dann ist es gut wenn noch eine Wand frei ist - das hat schon seinen Grund ;-)

Allgemein ist es aber gut die Wand unmittelbar hinter den Lautsprechern auch absorptiv zu gestalten. Also so ca 20 cm ab und aufwärts von den Lautsprechern. Darüber und darunter ruhig wieder teil-reflektierend (diesmal aber nicht horizontal wie an den Seiten sonder vertikal die Bretter arrangieren).

Wenn deine Speaker Flush in der Wand wären würde man die Wand nach diesem Raumkonzept komplett schallhart machen können.
Frei davor stehende Lautsprecher geben aber häufig noch eine gute Portion tiefere Mitten ziemlich omnidirektional ab. Und wenn die dann wieder von der Frontwand zurückgeworfen werden können die echt das Imaging beeinträchtigen.

cheers

Frage: In #12 rätst du mir, nach Bildern von Black_Bander zu googeln, hab ich gemacht, seine Projekte haben fast alle eine vollbehandelte Frontwand.
Wenn - wie du sagst - das Imaging beeinträchtigt werden kann, frequenzauslöschung etc. an EFP...
Sollte ich das dann nicht von Anfang an einbeziehen?
Also z.B. - sieh Anhang - einen anderen Wandteil als Puffer lassen?


Je näher einige Reflekionspunkt an der Originalquelle liegt, desto eher nimmt unser Gehör das nicht als eigenes Signal wahr hab ich mal in Physik gelernt. Das heißt doch, dass ein hinterer Wandteil besser als Puffer geeignet ist als die Wand hinter den Lautsprechern, da Schall über die Zeit 1. Energie verliert und 2. diffundiert.
Beim Recording ist es ja auch so, das alles über 10ms nicht angenehm zum arbeiten ist, Das wären ja knapp 3,4 Meter, bis der Schall aus der Box von der Rückwand an mein Ohr gelang und evtl Probleme mit auslöschungen oder so ergeben können.
Also je nachdem wo die Boxen dann letztendlich landen, spielt das evtl eine wichtige Rolle.

Ich frage aus Verständnissgründen, die Frontwand ist in meinem Fall ja mit Einzelelementen im Nachgang ohne Probleme zu behandeln.

LG
 

Anhänge

  • 944571AE-1442-4FBC-A171-7A4CD1AA0010.jpeg
    944571AE-1442-4FBC-A171-7A4CD1AA0010.jpeg
    136,5 KB · Aufrufe: 343
  • #50
Frage: In #12 rätst du mir, nach Bildern von Black_Bander zu googeln, hab ich gemacht, seine Projekte haben fast alle eine vollbehandelte Frontwand.

Ja da ging es glaub ich aber eher um anzuschauen wie man Decken grundsätzlich so gestalten kann.

Wenn - wie du sagst - das Imaging beeinträchtigt werden kann, frequenzauslöschung etc. an EFP...
Sollte ich das dann nicht von Anfang an einbeziehen?
Also z.B. - sieh Anhang - einen anderen Wandteil als Puffer lassen?

Da hinten kannst du nichts mehr groß raus holen. Wir reden hier von Frequenzen die nicht so leicht diffundieren. Meist ist es die Längsmode die am hartnäckigsten ist. Bei dir wird irgendwas um 50 Hz sein, dass man dann an der Vorderwand noch tackeln könnte. Da deine Rückwand aber gut versorgt ist, der Rest des Raumes auch, der Raum eine gewisse Größe hat und deine Rückwand nicht aus Beton sondern Gipskarton ist kann es eben auch sein, dass du hier gar nichts mehr brauchst.
Du kannst auf der Seite nicht einfach was weg lassen - alle Element sind Bestandteil eines Gesamtkonzeptes, es wurde schon was für 2 Schränke weggelassen. ;-)

Der Hauptgrund weshalb die Frontwand am Anfang frei bleibt ist aber eigentlich ein anderer. Wenn du jetzt im leeren Raum deine Speaker einmisst - so wie ich es ganz am Anfang beschrieben habe mit den vielen Messungen - dann wird das nichts mehr damit zu tun haben was raus kommt wenn du sie einmisst wenn du Seitenwände, Decke, Rückwand so behandelt hast wie vorgeschlagen. Du veränderst die Interaktion der Speaker mit den Wänden, und das Zeug ist nicht wenig was da eingezeichnet ist - das verändert schon was, soll es ja auch.
Wenn Seitenwände, Decke und Rückwand mit Steinwolle bestückt sind, möchte ich trotzdem volle Fläche für Speaker Positionierung haben. Es kommt sehr oft vor dass Speaker sehr nahe an der Frontwand nicht so schlecht funktionieren. Wenn da jetzt schon 40 cm Steinwolle dran sind kann ich das aber nicht mehr überprüfen.

Beim Einmessen der Speaker geht es hauptsächlich um den Bassbereich.
Du wirst im Nachhinein auf jeden Fall ein Element zwischen den Boxen brauchen um nicht Probleme mit dem Imaging zu bekommen. Aber um das geht es beim Festlegen der Speaker Position nicht, da geht es um den Bass.
Deine HS 8 sind über 30 cm tief, das heißt du wirst selbst wenn die komplett dicht an der Frontwand landen immer noch dazwischen ein Element mit über 20 cm Dicke anbringen können und es wird von oben betrachtet trotzdem noch hinter deinen Speakern sein.

Ich hoffe ich konnte die Frage beantworten.
 
  • #51
Ok Danke, das hab ich glaub ich verstanden.

So, jetzt Plan ich das Deckenkantenkonstrukt, dann Baumarkt fahren (Kundenkarte holen :)) bzw. Baustoffhandel suchen und dann los gehts!
Also nach dem der Arbeitsplatz ordnungsgemäß vorbereitet wurde und ich wieder fit bin (Arzt sagt vor. Anfang nächster Woche.

Ich melde mich in ca 10 Tagen mit Fotos vom Bau, bis dahin vielen Dank an alle! Besonders an dich ,@coffee boy !!!

LG
Nachtrag: Bei mir im Ort gibt es einen - recht großen - Baustoffhandel! Juhu!:D
 
  • #52
Ok Danke, das hab ich glaub ich verstanden.

So, jetzt Plan ich das Deckenkantenkonstrukt, dann Baumarkt fahren (Kundenkarte holen :)) bzw. Baustoffhandel suchen und dann los gehts!
Also nach dem der Arbeitsplatz ordnungsgemäß vorbereitet wurde und ich wieder fit bin (Arzt sagt vor. Anfang nächster Woche.

Ich melde mich in ca 10 Tagen mit Fotos vom Bau, bis dahin vielen Dank an alle! Besonders an dich ,@coffee boy !!!

LG
Nachtrag: Bei mir im Ort gibt es einen - recht großen - Baustoffhandel! Juhu!:D

Dann Feuer mal los! :right:
 
  • #53
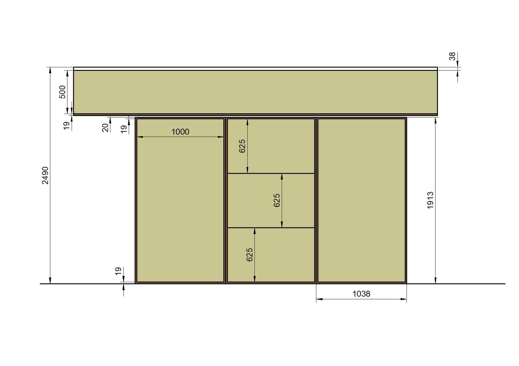
Bevor ich jetzt hier wild Dämmpakete bestellen:
Muss ich bezüglich des längsbezogenen Strömungwiederstandes des verwendeten Materials einen unterschied machen zwischen Decken Kantenabsorber und Seitenelementen?
 
  • #54
Bevor ich jetzt hier wild Dämmpakete bestellen:
Muss ich bezüglich des längsbezogenen Strömungwiederstandes des verwendeten Materials einen unterschied machen zwischen Decken Kantenabsorber und Seitenelementen?

Zwischen 5 kPa und 6 kPa passt für alles.
Glaswolle hat meist 5 und Steinwolle 6.
Preis sollte passen und halt auch ein bisschen wegen den Maßen schauen.

Verschiedene Materialien haben verschiedene Abmessungen, Glaswolle Platten meist 1250 x 625 mm, Steinwolle in 1000 x 625 mm Das Rollenzeug oft 1200 oder 1000 mm Breite und ein paar Meter lang.

Ich hab jetzt im Entwurf mit Seitenwandelementen geplant die 1038 mm breit sind. 2 x 19mm MDF Seiten und 1m Steinwolle (der längs nach da 625 x 1000). Das geht sich gut aus mit 3 Elementen bis zum Türstock auf der linken Seite. Zum einen von der Länge aber auch dass die einzelnen Elemente eine gute Tiefe haben und >= 6 Grad angewinkelt zur Wand stehen.
Dachlatten sind jetzt schon ein paar Zentimeter breiter als MDF 19 mm. Da musst du dein Zeichenprogramm anwerfen und schauen wie das dann ausgeht.
Ich hab halt geschaut, dass man so wenig wie möglich rum schneiden muss weil dass Ganze eh schon einen Haufen Arbeit macht. Aber wie schon erwähnt hab ich das aus der Zeichnung von meinem Raum einfach raus kopiert und in deinen eingefügt, weil die Maße nicht so weit auseinander liegen, muss aber ehrlich zugeben, dass mein Engagement nicht so weit reicht dass dann auch noch für andere Materialen umzuzeichnen ;-)

cheers
 
  • #55
UPDATE

So, heute war endlich, endlich Begin der Bauerei im Keller!!
Leider nicht ganz so weit gekommen wie erhofft, da
a) Baumarkt übervoll war (sehr einzigartige Erfahrung)
und
b) mein Keller anscheinend aus echt hochwertigem Stahlbeton besteht.
Mein Schlagbohrer ging in die Knie... Und wir haben mit der Decke noch nicht mal angefangen :(

Deshalb wird Montag ein Bohrhammer ausgeliehen :)

Trotzdem, wie versprochen hier der erste Tag:
FD5428E0-2A7B-47D4-834D-E993D3F62DE7.jpeg
0574D67A-8802-4310-A56C-598D50AA3940.jpeg


Nachtrag: rechte und linke Wand auch, aber Recording.de will mein Panorama Foto nicht laden
 
Zuletzt bearbeitet:
  • #56
Da geht ordentlich was voran... :p ;)
 
  • #58
wenn ich heut 100 Löcher in die Decke gehämmert habe, wer lacht dann wohl !?
Du definitiv nicht mehr :D
Ich habe gerade 30qm Decke abgehängt und dick mit Steinwolle versehen. Da lacht nix mehr.
 
Zuletzt bearbeitet:
  • Danke
Reaktionen: muleb
  • #59
F5701F5F-9221-4DA6-83A8-65D379604710.jpeg
Wand und Deckenbefestigung umlaufend fertig (heute nur 2 h Zeit gehabt)
Morgen dann Abkofferung...
 

Neue Antworten


Oft gelesene Themen

Zurück
Oben